No items found.
No items found.
No items found.
No items found.
Amsterdam
Herengracht 493
Adres
Herengracht 493 te Amsterdam (1017 BT)
Algemene informatie
Een prachtig en zeer representatief kantoorpand gelegen in het historische hart van Amsterdam aan de Grachtengordel. Het rijks monumentale pand is gebouwd in 1667 en kent een rijke historie van eigenaren en bewoners.
Locatie
Deze locatie staat bekend om haar levendige mix van wonen, werken en recreatie. Het pand bevindt zich tussen de Vijzelstraat en het Koningsplein in het gebied dat wordt aangeduid als de "Gouden Bocht". Het Muntplein en Rembrandtplein bevinden zich op loopafstand.
In de nabije omgeving van de Herengracht 493 bevindt zich een gevarieerd aanbod aan winkels en eetgelegenheden en cafés. Een aanbevolen optie zijn de smakelijke broodjes van ZeroZero. Daarnaast biedt Restaurant de Bazel zowel ontbijt, lunch als diner aan. Zowel Café Hoppe als Café Heuvel zijn ideale plekken om na het werk een drankje te doen.
Bereikbaarheid
Per openbaar vervoer is het object eveneens uitstekend te bereiken. Het object geniet van de nabijheid van de Noord-Zuidlijn, een belangrijke openbaarvervoersverbinding waarvan de halte Vijzelgracht op loopafstand te bereiken is. Door de centrale ligging van het object treft men verschillende tramlijnen aan die tevens directe verbindingen hebben naar het NS station Amsterdam Centraal.
Met eigen vervoer
Het object is gemakkelijk bereikbaar met de auto via de Vijzelstraat. Op de openbare weg geldt betaald parkeren en parkeren middels een vergunning-systeem van de gemeente Amsterdam.
Oppervlakte
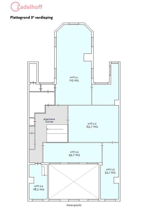
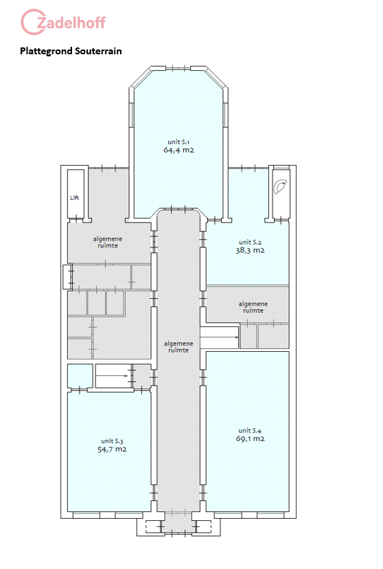
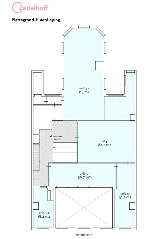
De totale oppervlakte van het pand bedraagt 1.489 m² verhuurbaar vloeroppervlak (v.v.o.), verdeeld over het souterrain, de beletage, en de 1e tot en met de 4e verdieping.
Voor de verhuur is circa 862 m² v.v.o. kantoorruimte beschikbaar, op basis van de volgende verdeling:
- S3 en S4: 54,7 m² en 69,1 m²
- 0.2, 0.3 en 0.5: 169,40 m²
- 2.1 en 2.2: 301 m²
- 3.1, 3.2, 3.3, 3.4 en 3.5: 267,7 m²
Te huur vanaf ca. 54,7 m² v.v.o.
De ruimten zijn ingemeten conform NEN2580.
Parkeren
Er zijn 2 parkeerplaatsen beschikbaar in de nabijgelegen parkeergarage in de Reguliersdwarsstraat.
Huurprijs € 300,- per maand per parkeerplaats. Op de openbare weg geldt betaald parkeren en parkeren middels een vergunning-systeem van de gemeente Amsterdam of in één van de nabij gelegen parkeergarages.
Huurprijs
Vanaf € 375,00 per m² per jaar.
Uitgangspunt is btw-belaste verhuur. Derhalve dient bovengenoemd bedrag te worden vermeerderd met het van toepassing zijnde btw-percentage. Indien huurder niet aan het 90% criterium voldoet, is er van rechtswege sprake van omzetbelasting vrijgestelde verhuur. Alsdan wordt de overeengekomen kale huurprijs, exclusief omzetbelasting, zodanig verhoogd dat het voor verhuurder ontstane nadeel wordt gecompenseerd.
Servicekosten
Een vast bedrag van € 75,- per m² per v.v.o. jaar, te vermeerderen met btw als vergoeding voor de volgende bijkomende leveringen en diensten:
- gasverbruik en vastrecht
- elektraverbruik en vastrecht
- watergebruik en vastrecht
- onderhoud en keuringen aan de installaties, w.o. centrale verwarming, airconditioning, lift, hydrofoor, deurbediening, intercom, (nood)verlichting, zonwering, alarminstallatie (in algemene ruimten), brandmeldinstallatie, haspels etc.
- schoonmaakkosten van de gemeenschappelijke ruimten
- vernieuwen van lampen in de gemeenschappelijke ruimte
- gemeentelijke heffingen (rioolrecht, vuilafvoer etc.)
- glasbewassing gemeenschappelijke ruimten en buitenzijde
- tuin- en terreinonderhoud
- assurantiepremie buitenbeglazing
- 5% administratie kosten over de hierboven beschreven leveringen en diensten.
Opleveringsniveau en voorzieningen
Het opleveringsniveau verschilt per unit. De basisoplevering betreft in de huidige staat o.a. voorzien van:
- sanitaire groep;
- gedeelde personenlift;
- vloerbedekking;
- centrale verwarming;
- kabelgoten t.b.v. elektra en databekabeling;
- verlichtingsarmaturen/ -spots;
- airco’s (daar waar aanwezig);
- brandmeld- en alarminstallatie in de centrale entree en algemene ruimte.
Energielabel
Het pand is een rijksmonument en is derhalve niet label-plichtig.
Huurprijsaanpassing
Jaarlijks, op basis van het Consumenten Prijsindexcijfer (CPI), reeks Alle Huishoudens (2015=100); voor het eerst 1 jaar na de huuringangsdatum.
Huurtermijn
In overleg.
Betaling
Huur, servicekosten en btw per kwartaal vooruit.
Zekerheidsstelling
Een bankgarantie ter grootte van 3 maanden huur vermeerderd met servicekosten en btw. De bankgarantie dient gesteld en afgegeven te worden door een erkende Nederlandse bankinstelling.
Aanvaarding
Per direct.
Overige voorwaarden en condities
Conform het model van de verhuurder, gebaseerd op het R.O.Z. huurovereenkomst, model 2015.
Voor informatie Zadelhoff Vastgoedadviseurs B.V.
Antonio Vivaldistraat 2
1083 HP AMSTERDAM
tel: 020 70 581 27
e-mail: amsterdam@zadelhoffvastgoedadviseurs.nl
www.zadelhoffvastgoedadviseurs.nl
Adres
Oppervlakte
862
m²
Hoofdfunctie
Kantoorruimte
Status
Beschikbaar
Huurprijs / koopsom
€ 375 per m² per jaar
Aanvaarding
In overleg



























