No items found.
No items found.
No items found.
No items found.
Amsterdam Duivendrecht
Joop Geesinkweg 201-224
Algemene informatie
Dit moderne gebouw, gelegen aan de Joop Geesinkweg 201-224, bevindt zich op een uitstekend bereikbare locatie direct aan de ring A10. Het is gelegen naast het Amstel Business Park en is goed bereikbaar met het openbaar vervoer. Het gebouw, ook wel het “A’dammium” genoemd, heeft een totaal vloeroppervlak van 7.510 m² VVO, verdeeld over 11 functionele en stijlvolle verdiepingen. De kantoorruimtes kenmerken zich door een industriële uitstraling, met gietvloeren en moderne inbouw elementen.
Locatie
Het is gelegen naast het Amstel Business Park en is goed bereikbaar met het openbaar vervoer.
Bereikbaarheid
Het openbaar vervoer
Diverse metroverbindingen zorgen voor een goede bereikbaarheid. Metrostation Spaklerweg en Van der Madeweg zijn op een paar minuten loopafstand bereikbaar. Deze metrolijn heeft een directe verbinding met de NS-intercity stations Duivendrecht en Amstel.
Met eigen vervoer
Het object is uitstekend te bereiken via de ringweg A10 Zuid (afslag S111) welke directe aansluiting geeft op de Rijksweg A2.
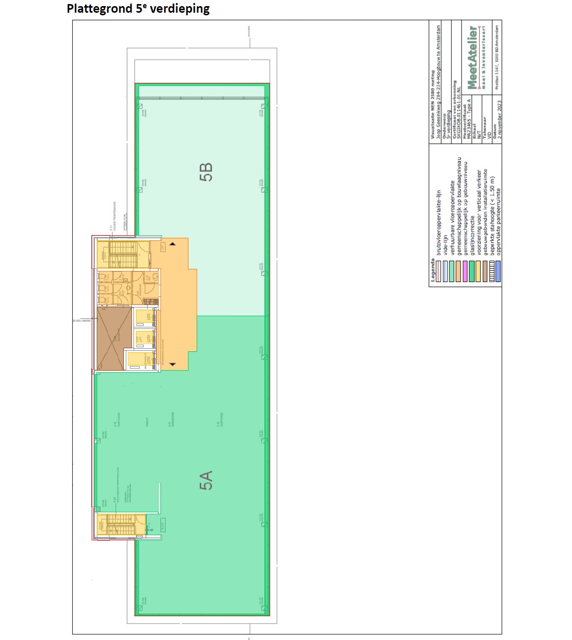
Oppervlakte
De huidige beschikbaarheid is ca. 1.962 m² VVO kantoorruimte, als volgt verdeeld:
2e verdieping: ca. 573 m² VVO
3e verdieping: ca. 578 m² VVO
4e verdieping: ca. 584 m² VVO
5e verdieping: ca. 227 m² VVO
De ruimten zijn conform NEN2580 inmeten.
Parkeren
De parkeernorm is 1:100 m².
Huurprijs
Kantoorruimte
€ 195,- per m² VVO te vermeerderen met BTW.
Parkeren
€ 1.750,- per parkeerplaats per jaar, te vermeerderen met BTW.
Opleveringsniveau en voorzieningen
De kantoorruimten worden turn-key in huidige staat opgeleverd, inclusief de volgende zaken:
- Gemeenschappelijke entree met bemande receptie
- Gemeenschappelijke bar en informele werkplekken op de 10e verdieping
- Pantry/keuken per verdieping
- Eigen toiletgroep per verdieping
- Mechanische ventilatie met topkoeling
- Glasvezelaansluiting in het gebouw
- Huidig inbouwpakket, o.a. afgewerkt met industrieel plafond, luchtbehandeling, airconditioning, verlichting en scheidingswanden, pantry's etc.
Het is mogelijk om de ruimte gemeubileerd op te leveren.
Energielabel
Energielabel B
Huurprijsaanpassing
Jaarlijks, op basis van het Consumenten Prijsindexcijfer (CPI), reeks Alle Huishoudens (2015=100); voor het eerst 1 jaar na de huuringangsdatum.
Huurtermijn
5 jaar met verlengingsperioden van telkens 5 jaar.
Betaling
Huur vermeerderd met btw per kwartaal vooruit.
Servicekosten
€ 65,- per m² per jaar te vermeerderen met omzetbelasting. Op basis van een voorschot bedrag met jaarlijkse nacalculatie.
Zekerheidsstelling
Een bankgarantie ter grootte van 3 maanden huur vermeerderd met servicekosten en btw, welke gesteld en afgegeven dient te worden door een erkende Nederlandse bankinstelling.
Aanvaarding
In nader overleg, doch spoedig.
Overige voorwaarden en condities
Huurovereenkomst conform het model van de verhuurder, gebaseerd op het R.O.Z. huurovereenkomst, model 2015.
Voor informatie
Zadelhoff Vastgoedadviseurs B.V.
Antonio Vivaldistraat 2
1083 HP AMSTERDAM
tel: 020 70 581 27
e-mail: amsterdam@zadelhoffvastgoedadviseurs.nl
www.zadelhoffvastgoedadviseurs.nl
Adres
Oppervlakte
1962
m²
Hoofdfunctie
Kantoorruimte
Status
Beschikbaar
Huurprijs / koopsom
€ 195 per m² per jaar
Aanvaarding
In overleg

























